
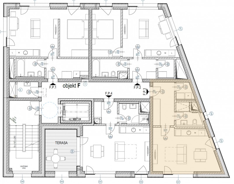
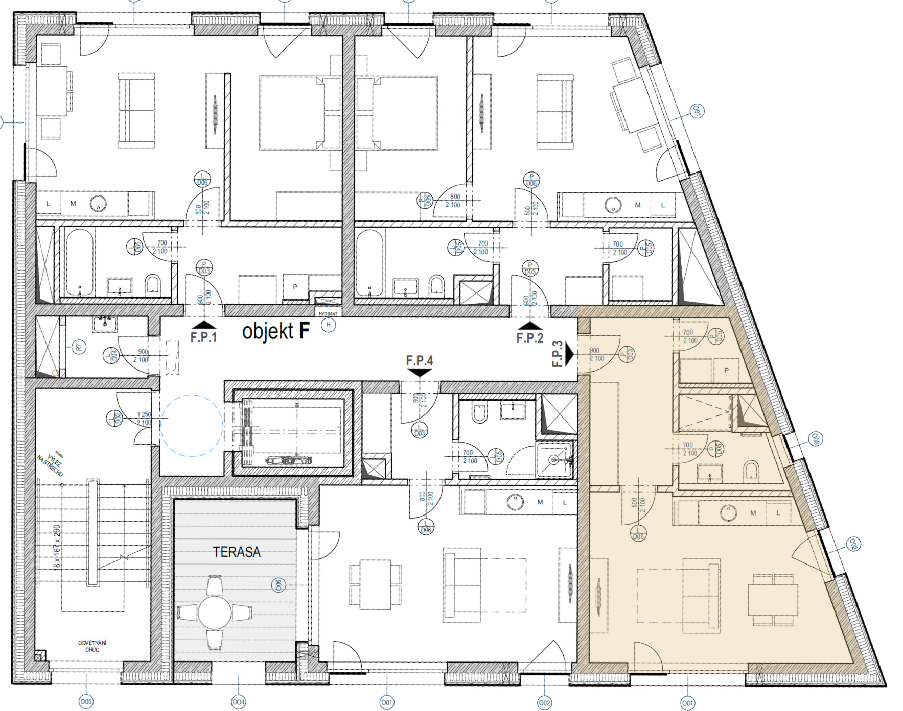
Apartmán F P.03 je prostorná podkrovní jednotka
s dispozičním řešením 1+kk o celkové výměře 40,69 m², umístěná
v nejvyšším 5. nadzemním podlaží (4. patře) budovy F
v rámci projektu Rezidence Pod Portáškami.
Budova F je situována ve druhé linii od hlavní komunikace, ve svahu nad
centrální částí areálu, a jedná se o nejmenší a nejkomornější
objekt celého projektu, určený pro klienty vyhledávající klidnější
formu horského bydlení.
Díky orientaci na východ a jih nabízí apartmán nadstandardní přísun denního světla v dopoledních hodinách a otevřené výhledy do okolní horské krajiny a také na lanovku vedoucí na Portášovy Boudy. Umístění v podkroví a poloha ve svahu zajišťují nejen lepší světelné podmínky, ale i vyšší míru soukromí a pocit odstupu od ruchu hlavního nástupního prostoru areálu. Podkrovní charakter jednotky podtrhuje autentickou atmosféru horského apartmánu a zároveň zvyšuje její dlouhodobou atraktivitu.
Apartmán se nachází v posledním podlaží objektu, což znamená
žádné další bytové jednotky nad ním, klidnější provoz a příjemné
akustické podmínky. Zároveň si zachovává plnou dostupnost lanové dráhy,
sjezdovek, restaurací a dalších služeb, které jsou v docházkové
vzdálenosti, aniž by byly v bezprostředním kontaktu s jednotkou.
Je také úmístěn nejdále od výtahu, což zvyšuje klidový komfort
každodenního užívání i atraktivitu při krátkodobém pronájmu.
Dispoziční řešení apartmánu je navrženo s důrazem na efektivní využití prostoru pod střechou, dostatek úložných kapacit a komfortní provoz jak při vlastním rekreačním užívání, tak při profesionálním aparthotelovém provozu. Jednotka bude předána kompletně vybavená nábytkem a interiérovými prvky určenými pro hotelový provoz ve vysokém standardu 4–5 a připravená k okamžitému užívání bez nutnosti dalších investic.
Rezidence Pod Portáškami vzniká v lokalitě, která má ambici stát se novým přirozeným centrem Velké Úpy, s přímou návazností na sportovní infrastrukturu, gastronomii a služby, a zároveň v těsném kontaktu s přírodou východních Krkonoš. V tomto kontextu představuje apartmán F P.03 vhodnou volbu jak pro vlastní rekreační pobyty, tak jako dlouhodobě stabilní investici s vysokým potenciálem obsazenosti.
Ke konečné ceně jednotky bude připočtena cena za parkovací stání v podzemní garáži a samostatný úložný prostor (ski box).
| VSTUP / CHODBA | 8,30 m2 |
| KOUPELNA | 4,04 m2 |
| OBYTNÁ MÍSTNOST | 22,91 m2 |
| KOMORA | 2,35 m2 |