
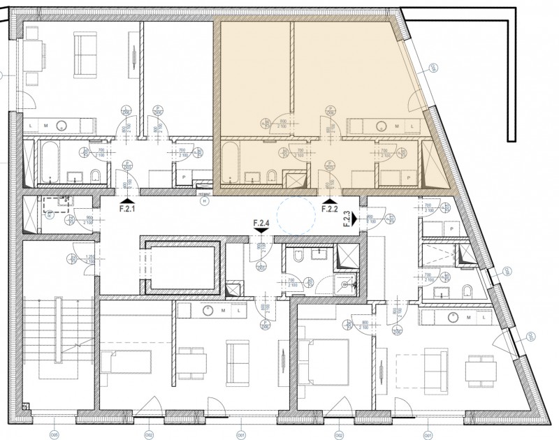
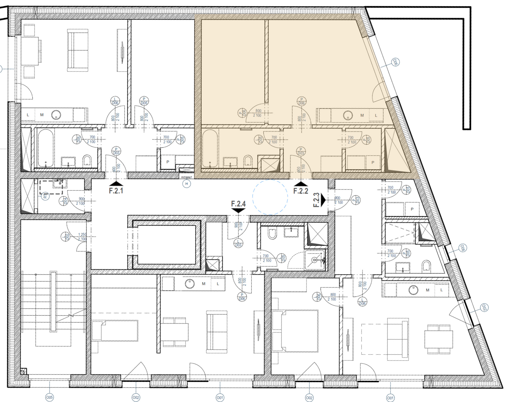
Ateliér F 2.02 je prostorná jednotka s dispozičním
řešením 2+kk s terasou o celkové výměře
50,48 m², umístěná v 2. nadzemním podlaží
(1. patře) budovy F v rámci projektu Rezidence Pod Portáškami.
Budova F je situována ve druhé linii od hlavní komunikace, ve svahu nad
centrální částí areálu, a patří mezi menší a komornější objekty
celého rezidenčního souboru.
Díky orientaci oken na sever a východ nabízí apartmán dostatek přirozeného denního světla a příjemný kontakt s okolní horskou krajinou. Poloha budovy ve svahu umožňuje otevřenější výhledy a pocit prostorové volnosti, který je u horských rezidenčních projektů vysoce ceněn, a zároveň zachovává přímou vazbu na služby a infrastrukturu areálu.
Dispoziční řešení apartmánu je navrženo s důrazem na efektivní využití plochy, logické členění obytné části a dostatek úložných kapacit. Jednotka poskytuje komfortní zázemí jak pro vlastní rekreační pobyty, tak pro profesionální aparthotelový provoz s vysokými nároky na praktičnost a dlouhodobou provozní udržitelnost.
Apartmán bude předán kompletně vybavený nábytkem a interiérovými prvky určenými pro hotelový provoz ve vysokém standardu 4–5 a připravený k okamžitému užívání bez nutnosti dalších investic. Použité materiály i řešení interiéru odpovídají charakteru moderní horské rezidence a kladou důraz na odolnost, funkčnost a nadčasovost.
Rezidence Pod Portáškami vzniká v lokalitě, která má ambici stát se novým přirozeným centrem Velké Úpy, s přímou návazností na sportovní infrastrukturu, gastronomii a služby, a zároveň v těsném kontaktu s přírodou východních Krkonoš. Apartmán F 2.02 tak představuje vyváženou kombinaci kvalitního horského bydlení a stabilní investiční příležitosti.
Ke konečné ceně jednotky bude připočtena cena za parkovací stání v podzemní garáži a samostatný úložný prostor (ski box).
| VSTUP / CHODBA | 4,86 m2 |
| KOUPELNA | 5,20 m2 |
| ATELIÉR 1 | 12,07 m2 |
| ATELIÉR 2 | 20,28 m2 |
| KOMORA | 2,68 m2 |