
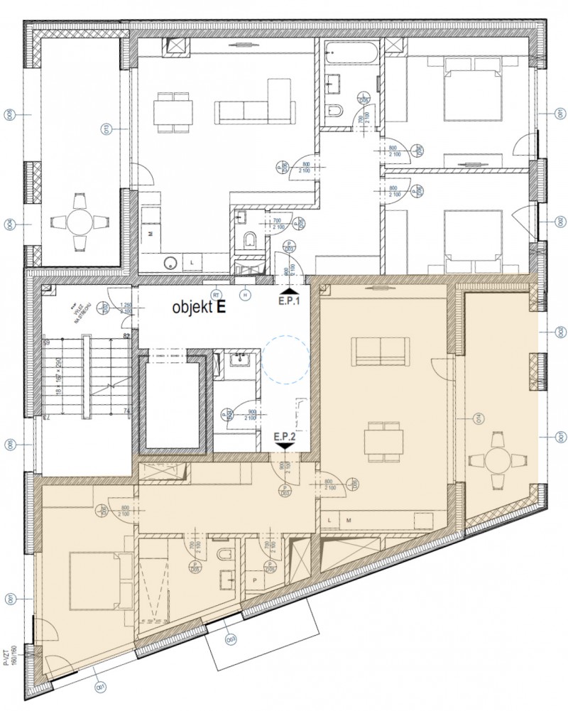
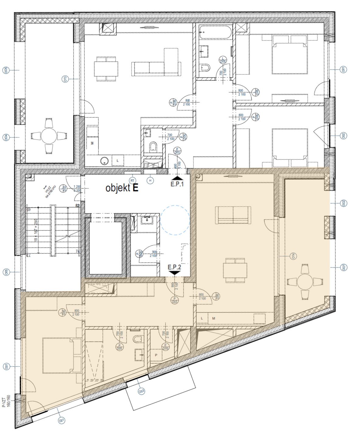
Jednotka 2+kk o výměře 72,14 m2
Podkrovní apartmán E P.02 je velkoryse a promyšleně navržená jednotka o dispozici 2+kk a celkové výměře 72,14 m², umístěná v 5. nadzemním podlaží (4. patře) budovy E projektu Rezidence Pod Portáškami. Jedná se o druhou nejprostornější jednotku v celém projektu. Náleží k ní i terasa orientovaná na východ.
Budova E uzavírá uliční frontu celého souboru E–D–C–B–A a je situována nejdále od hlavního pohybu a provozu centrální části Velké Úpy. Díky tomu působí klidněji, komorněji a nabízí vyšší míru soukromí než domy blíže k hlavnímu náměstí. Menší počet jednotek v budově přispívá k civilní atmosféře a pocitu „menšího domu“, nikoli anonymního aparthotelového bloku.
Díky západní, jižní a východní orientaci oken a své pozici v nejvyšším patře budovy E získává apartmán přirozené nepřetržité denní světlo a vizuální kontakt s okolní horskou krajinou a svahem, případně s klidnější částí rezidenčního areálu. Poloha jednotky umožňuje vnímat charakter horského prostředí bez přímého kontaktu s ruchem veřejných prostor, což ocení jak vlastníci při rekreačním pobytu, tak hosté hledající klidnější typ ubytování.
Dispoziční řešení je navrženo s důrazem na funkčnost, efektivní využití plochy a dostatek úložných prostor. Apartmán je koncipován tak, aby vyhovoval jak soukromému užívání, tak profesionálnímu aparthotelovému provozu. Jednotka bude předána kompletně vybavená nábytkem, kuchyňským koutem a interiérovými prvky odpovídajícími standardu 4–5★, s ohledem na dlouhodobou životnost a snadnou údržbu.
Rezidence Pod Portáškami vzniká v lokalitě s ambicí stát se novým přirozeným centrem Velké Úpy, jakožto druhého centra Pece pod Sněžkou, s přímou návazností na lyžařský areál, turistické trasy i navazující služby. Budova E přináší do tohoto konceptu klidnější rezidenční polohu, která doplňuje živější část areálu o vyvážený protipól.
Ke konečné ceně jednotky bude připočtena cena za parkovací stání v podzemní garáži a samostatný úložný prostor (ski box), které jsou nedílnou součástí komfortního užívání horského apartmánu v celoročním provozu.
| VSTUP / CHODBA | 11,16 m2 |
| KOUPELNA | 7,23 m2 |
| OBYTNÁ MÍSTNOST | 30,20 m2 |
| LOŽNICE | 15,13 m2 |
| KOMORA | 1,9 m2 |