
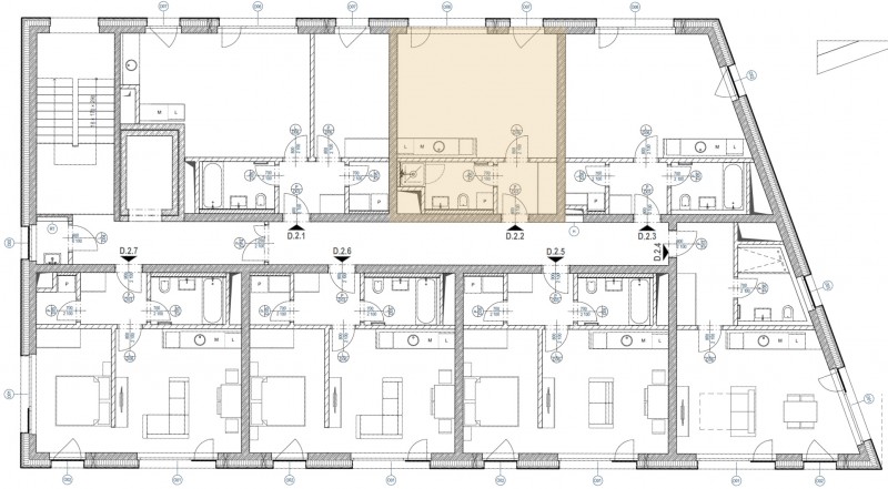
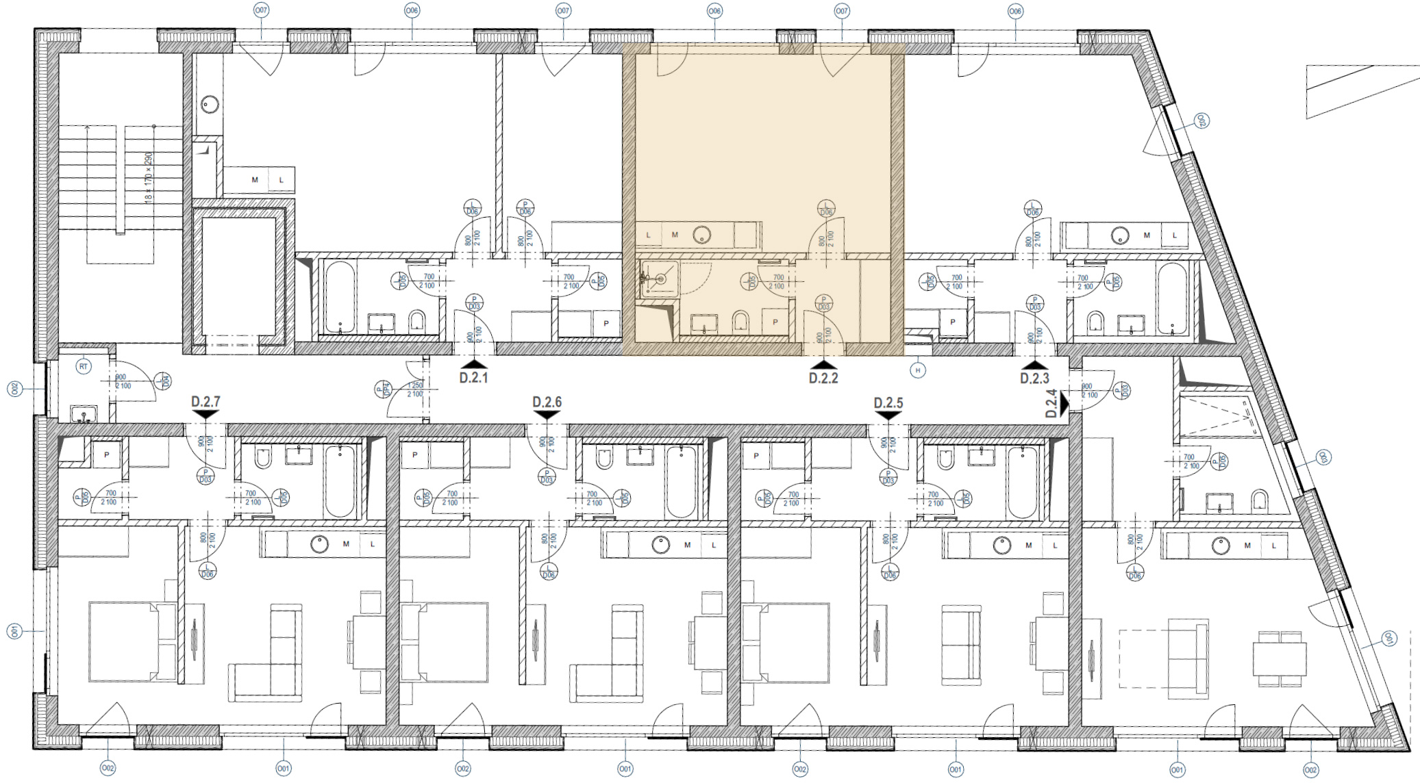
Ateliér D 2.02 je účelně navržená kompaktní jednotka o dispozici 1+kk a celkové výměře 37,46 m², umístěná v 2. nadzemním podlaží (1. patře) budovy D v rámci projektu Rezidence Pod Portáškami.
Budova D je součástí hlavní uliční fronty rezidenčního souboru a nachází se mezi budovami C a E. Svým urbanistickým i architektonickým řešením velmi úzce navazuje na budovu B, se kterou sdílí obdobný charakter i proporce. Nabízí tak vyvážený poměr mezi dostupností centrální části areálu a klidným rezidenčním prostředím horského bydlení.
Apartmán disponuje severní orientací oken, která zajišťuje dostatek denního světla a přirozený kontakt s okolním prostředím rezidence. Poloha jednotky je vhodná jak pro vlastní rekreační užívání, tak pro dlouhodobě stabilní aparthotelový provoz.
Dispoziční řešení je navrženo s důrazem na funkčnost, logické členění prostoru a efektivní využití podlahové plochy. Jednotka poskytuje dostatek úložných kapacit a komfortní zázemí odpovídající nárokům moderního horského apartmánu.
Apartmán bude předán kompletně vybavený nábytkem, kuchyňským koutem a interiérovými prvky v jednotném stylu projektu, určenými pro profesionální ubytovací provoz. Použité materiály a technické řešení odpovídají standardu 4–5★, s důrazem na dlouhodobou odolnost, snadnou údržbu a provozní efektivitu.
Rezidence Pod Portáškami vzniká v lokalitě s ambicí vytvořit nové přirozené centrum Velké Úpy, s návazností na služby, gastronomii a sportovní infrastrukturu v rámci Pece pod Sněžkou. Budova D zapadá do tohoto konceptu jako standardní rezidenční dům s dlouhodobě stabilní užitnou hodnotou.
Ke konečné ceně jednotky bude připočtena cena za parkovací stání v podzemní garáži a samostatný úložný prostor (ski box).
| VSTUP / CHODBA | 4,20 m2 |
| KOUPELNA | 5,00 m2 |
| ATELIÉR | 25,68 m2 |