
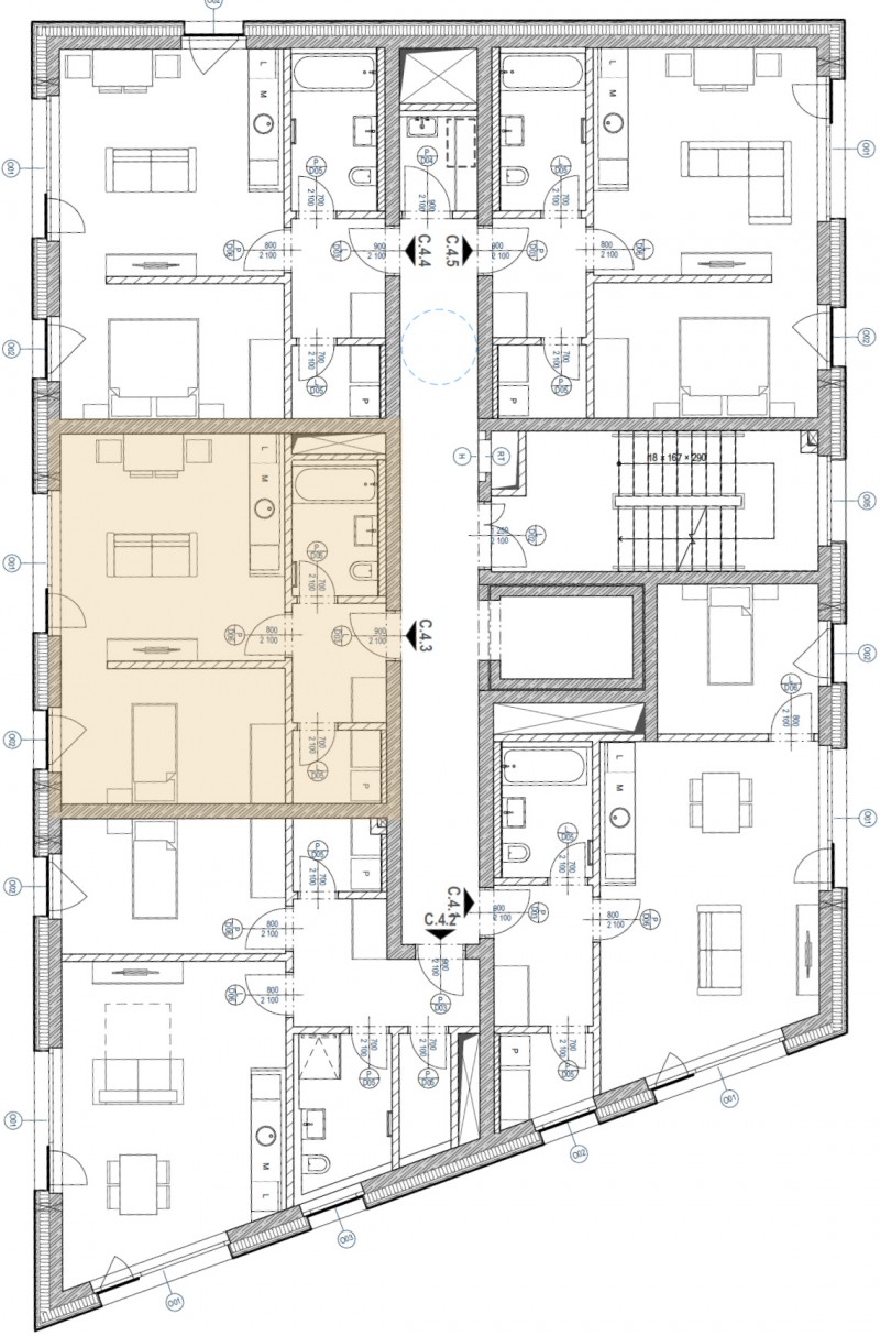
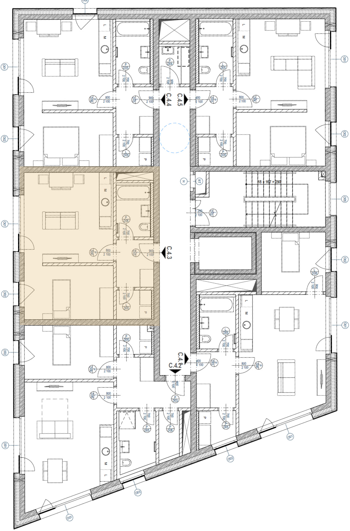
Apartmán C 4.03 je funkčně řešená prostorná jednotka o dispozici 1+kk a celkové výměře 48,07 m², umístěná ve 4. nadzemním podlaží (3. patře) budovy C v rámci projektu Rezidence Pod Portáškami.
Budova C mírně ustupuje od hlavní uliční fronty rezidenčního souboru, čímž přirozeně vytváří menší veřejné prostranství a opticky odlehčuje centrální část areálu. Oproti sousedním budovám B a D působí štíhlejším dojmem, což se promítá do komornějšího měřítka domu a klidnějšího rezidenčního charakteru.
Apartmán disponuje západní orientací oken, která zajišťuje dostatek denního světla a vizuální kontakt s prostorem rezidence, případně s okolní horskou krajinou. Poloha jednotky nabízí vyvážený poměr mezi dostupností centrální části areálu a pocitem odstupu od hlavního pohybu.
Dispoziční řešení je navrženo s důrazem na efektivní využití prostoru, logické členění jednotlivých zón a dostatek úložných kapacit. Jednotka je koncipována tak, aby vyhovovala jak vlastníkům při soukromém užívání, tak požadavkům profesionálního aparthotelového provozu.
Apartmán bude předán kompletně vybavený nábytkem, kuchyňským koutem a interiérovými prvky v jednotném stylu projektu, odpovídajícím standardu 4–5★. Použité materiály a technická řešení jsou voleny s ohledem na dlouhodobou životnost a snadnou údržbu.
Rezidence Pod Portáškami vzniká v lokalitě s ambicí vytvořit nové přirozené centrum Velké Úpy, s přímou vazbou na služby, gastronomii a sportovní infrastrukturu v rámci Pece pod Sněžkou. Budova C do tohoto konceptu přináší komornější měřítko a kultivovaný odstup od hlavní uliční linie.
Ke konečné ceně jednotky bude připočtena cena za parkovací stání v podzemní garáži a samostatný úložný prostor (ski box).
| VSTUP / CHODBA | 4,64 m2 |
| KOUPELNA | 4,45 m2 |
| OBYTNÁ MÍSTNOST | 32,47 m2 |
| KOMORA | 2,58 m2 |