
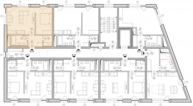
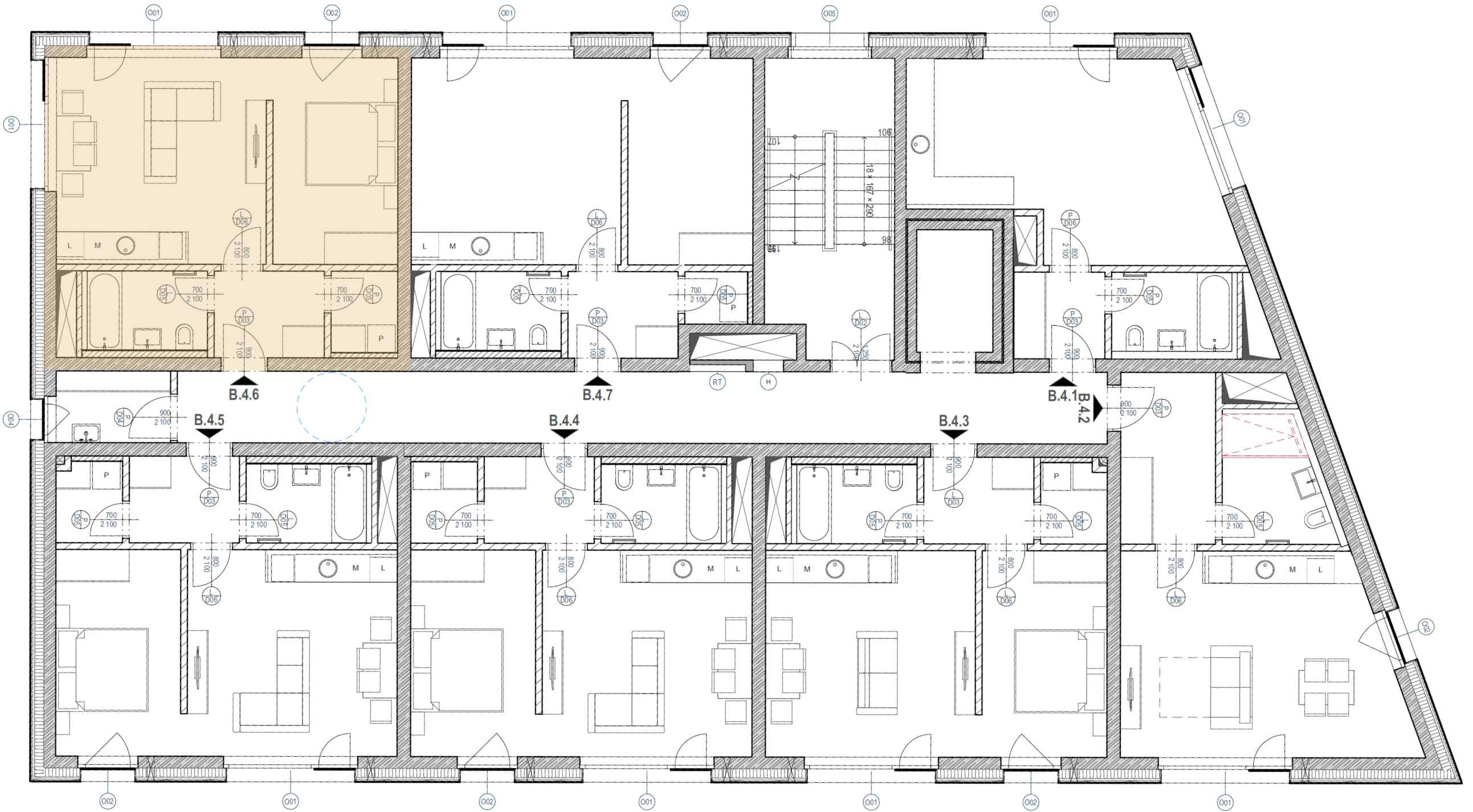
Apartmán B 4.06 je účelně navržená jednotka o dispozici 1+kk a celkové výměře 48,07 m², umístěná ve 4. nadzemním podlaží (3. patře) budovy B v rámci projektu Rezidence Pod Portáškami.
Budova B je součástí hlavní uliční fronty rezidenčního souboru a nachází se mezi budovami A a C. Její poloha nabízí vyvážený poměr mezi dostupností centrální části areálu a klidným rezidenčním charakterem horského bydlení. Díky této pozici je vhodná jak pro vlastní rekreační využití, tak pro stabilní aparthotelový provoz.
Apartmán disponuje západní a severní orientací oken, která zajišťuje dostatek denního světla a přirozený kontakt s okolním prostředím rezidence a horskou krajinou. Dispozice je navržena s důrazem na praktické členění prostoru, efektivní využití podlahové plochy a dostatek úložných kapacit, což odpovídá nárokům moderního horského apartmánu.
Jednotka bude předána kompletně vybavená nábytkem, kuchyňským koutem a interiérovými prvky určenými pro profesionální ubytovací provoz. Použité materiály a technické řešení odpovídají standardu 4–5★, s důrazem na dlouhodobou odolnost, snadnou údržbu a komfort uživatelů.
Rezidence Pod Portáškami vzniká v lokalitě s ambicí vytvořit nové přirozené centrum Velké Úpy, s přímou vazbou na služby, gastronomii a sportovní infrastrukturu v rámci Pece pod Sněžkou. Budova B představuje typický rezidenční dům projektu, který propojuje dostupnost, funkčnost a dlouhodobou užitnou hodnotu.
Ke konečné ceně jednotky bude připočtena cena za parkovací stání v podzemní garáži a samostatný úložný prostor (ski box).
| VSTUP / CHODBA | 4,64 m2 |
| KOUPELNA | 4,45 m2 |
| OBYTNÁ MÍSTNOST | 32,47 m2 |
| KOMORA | 2,53 m2 |