
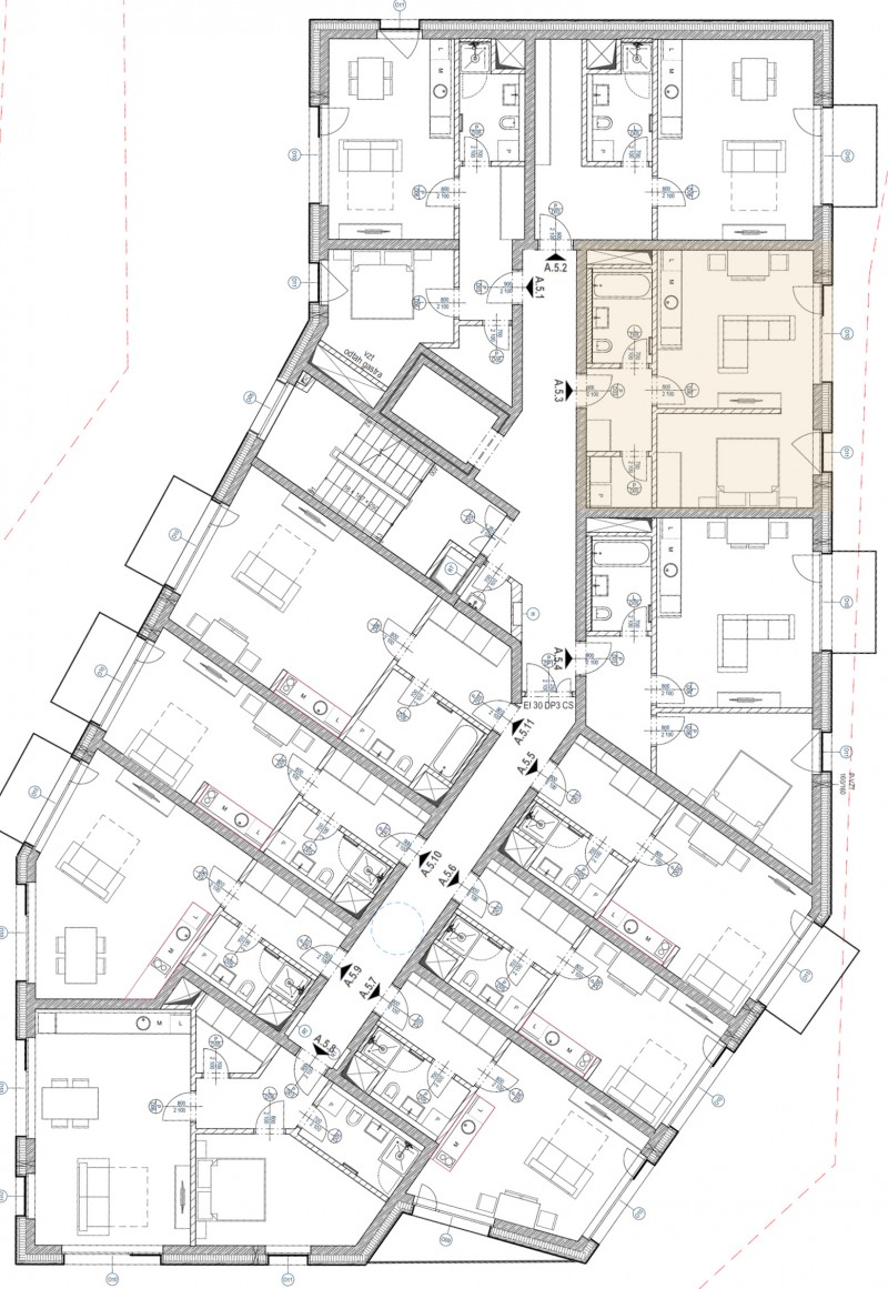
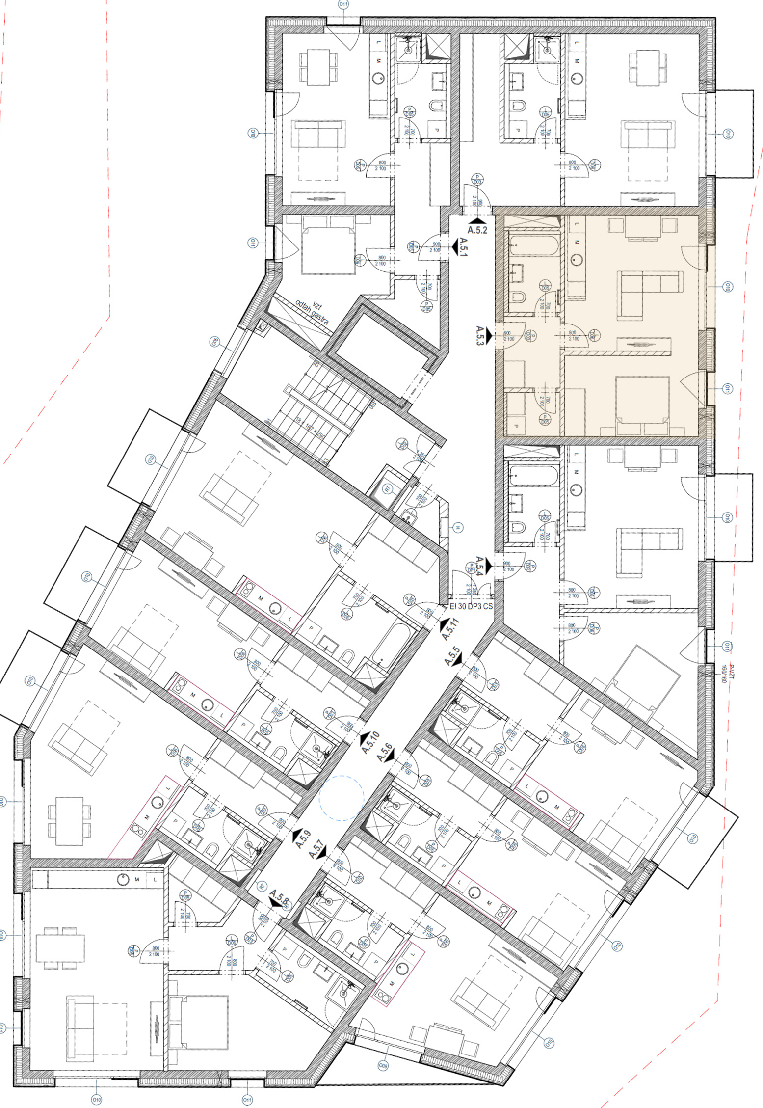
Apartmán A 5.03 je prakticky řešená jednotka
1+kk o celkové výměře 48,07 m², umístěná
v 5. nadzemním podlaží (4. patře) budovy
A v rámci projektu Rezidence Pod Portáškami.
Budova A je umístěna zcela vpravo, nejblíže zastávce hromadné dopravy a
konečné lanové dráhy na Portášovy boudy.
Díky východní orientaci oken nabízí apartmán ranní světlo a přímý vizuální kontakt se stanicí lanové dráhy na Portášovy boudy, což podtrhuje jeho horský charakter i bezprostřední propojení s lyžařským areálem. Poloha jednotky zároveň umožňuje vnímat přirozený ruch horského centra, aniž by ztrácela pocit soukromí.
Jednotka se nachází v bezprostřední blízkosti výtahu, což zvyšuje komfort každodenního užívání i atraktivitu při krátkodobém pronájmu, zejména pro rodiny, seniory či hosty s lyžařskou výbavou.
Dispoziční řešení 1+kk je navrženo s důrazem na efektivní využití prostoru, dostatek úložných kapacit a pohodlné zázemí jak pro vlastní pobyty, tak pro profesionální provoz ubytovacích služeb. Apartmán bude předán kompletně vybavený nábytkem a interiérovými prvky určenými pro hotelový provoz ve vysokém standardu 4–5.
Rezidence Pod Portáškami vzniká v místě, které má ambici stát se novým přirozeným centrem Velké Úpy, druhým městským centrem Pece pod Sněžkou, s návazností na služby, gastronomii a sportovní infrastrukturu, a zároveň v těsném kontaktu s přírodou východních Krkonoš. Tato kombinace činí jednotku A 5.03 vhodnou jak pro vlastní rekreační využití, tak jako dlouhodobě stabilní investici.
Ke konečné ceně jednotky bude připočtena cena za parkovací stání v podzemní garáži a úložný prostor (ski box).
| VSTUP / CHODBA | 4,64 m2 |
| KOUPELNA | 4,45 m2 |
| OBYTNÁ MÍSTNOST | 32,47 m2 |
| KOMORA | 2,58 m2 |