
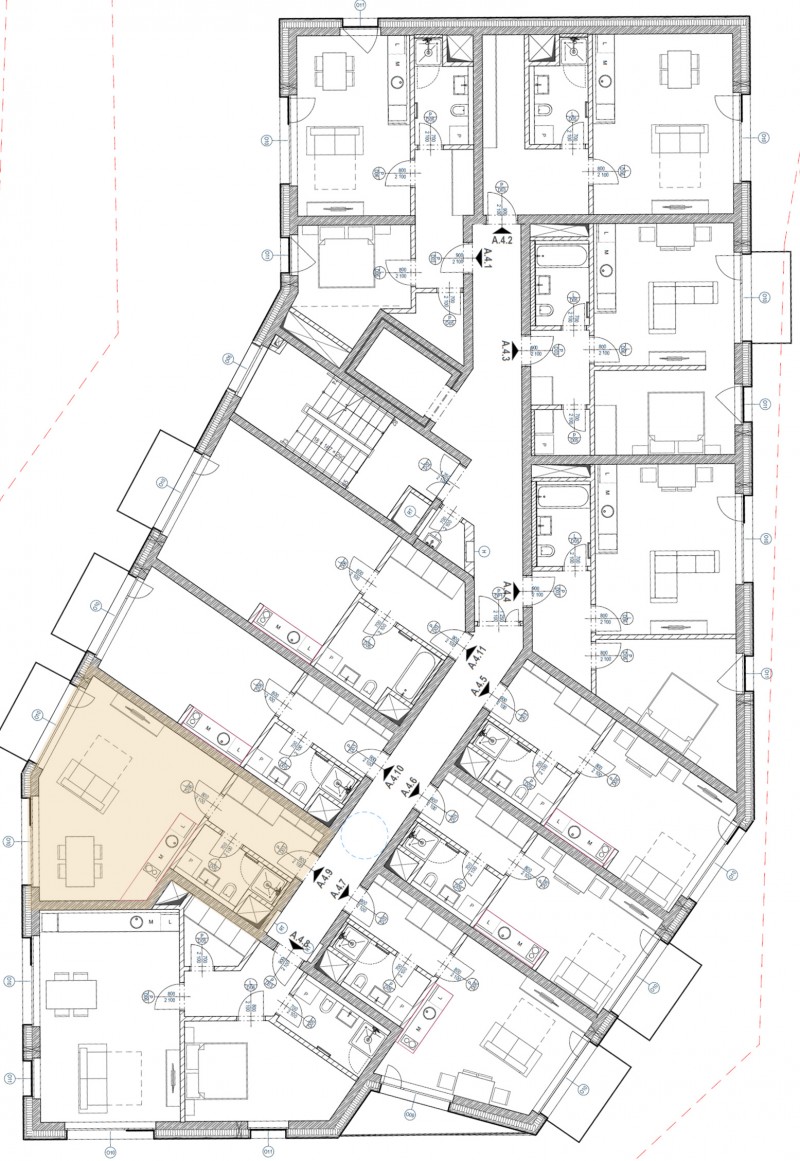
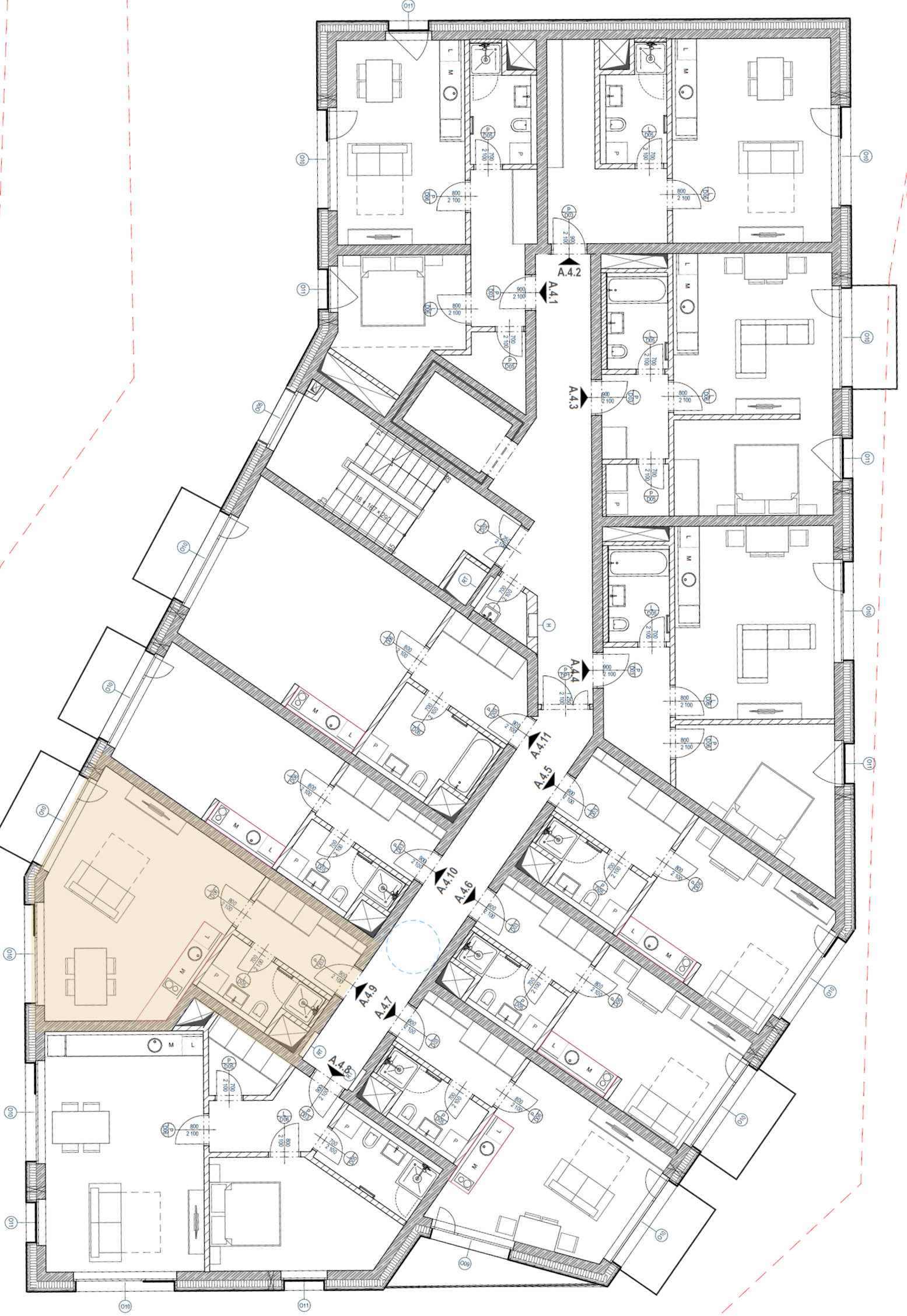
Apartmán A 4.09 je prakticky řešená prostorná jednotka 1+kk s balkonem o celkové výměře 42 m², umístěná ve 4. nadzemním podlaží (3. patře) budovy A v rámci projektu Rezidence Pod Portáškami. Budova A je umístěna zcela vpravo, nejblíže zastávce hromadné dopravy a konečné lanové dráhy na Portášovy boudy.
Díky západní orientaci oken nabízí apartmán dlouhé odpolední světlo a přímý vizuální kontakt s vnitřním náměstím, což podtrhuje jeho horský charakter i bezprostřední propojení s lyžařským areálem. Poloha jednotky zároveň umožňuje využít maximálního klidu, protože není orientována do ulice.
Jednotka se nachází v dále od výtahu, což zvyšuje klidový komfort každodenního užívání i atraktivitu při krátkodobém pronájmu, zejména pro rodiny, seniory.
Dispoziční řešení 1+kk je navrženo s důrazem na efektivní využití prostoru, dostatek úložných kapacit a pohodlné zázemí jak pro vlastní pobyty, tak pro profesionální provoz ubytovacích služeb. Apartmán bude předán kompletně vybavený nábytkem a interiérovými prvky určenými pro hotelový provoz ve vysokém standardu 4–5.
Rezidence Pod Portáškami vzniká v místě, které má ambici stát se novým přirozeným centrem Velké Úpy, druhým městským centrem Pece pod Sněžkou, s návazností na služby, gastronomii a sportovní infrastrukturu, a zároveň v těsném kontaktu s přírodou východních Krkonoš. Tato kombinace činí jednotku A 4.09 vhodnou jak pro vlastní rekreační využití, tak jako dlouhodobě stabilní investici.
Ke konečné ceně jednotky bude připočtena cena za parkovací stání v podzemní garáži a úložný prostor (ski box).
| VSTUP / CHODBA | 5,88 m2 |
| KOUPELNA | 4,55 m2 |
| OBYTNÁ MÍSTNOST | 29,19 m2 |