
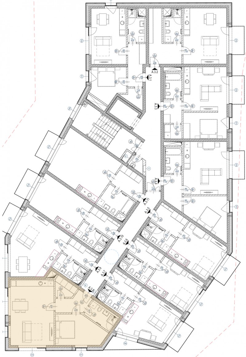
Apartmán A 3.08 je prostorná a praktický řešená
jednotka 2+kk o celkové výměře 62,82 m², umístěná ve
3. nadzemním podlaží (2. patře) budovy
A v rámci projektu Rezidence Pod Portáškami.
Budova A je umístěna zcela vpravo, nejblíže zastávce hromadné dopravy a
konečné lanové dráhy na Portášovy boudy.
Díky jižní a západní orientaci oken nabízí apartmán dostatek světla po celý den a přímý vizuální kontakt s děním centru Velké Úpy, což podtrhuje jeho horský charakter i bezprostřední propojení s lyžařským areálem. Poloha jednotky zároveň umožňuje vnímat přirozený ruch horského centra, aniž by ztrácela pocit soukromí.
Jednotka se nachází dále od výtahu, což zvyšuje komfort klidu pro každodenní užívání i atraktivitu při krátkodobém pronájmu.
Dispoziční řešení 2+kk je navrženo s důrazem na efektivní využití prostoru, dostatek úložných kapacit a pohodlné zázemí jak pro vlastní pobyty, tak pro profesionální provoz ubytovacích služeb. Apartmán bude předán kompletně vybavený nábytkem a interiérovými prvky určenými pro hotelový provoz ve vysokém standardu 4–5.
Rezidence Pod Portáškami vzniká v místě, které má ambici stát se novým přirozeným centrem Velké Úpy, druhým městským centrem Pece pod Sněžkou, s návazností na služby, gastronomii a sportovní infrastrukturu, a zároveň v těsném kontaktu s přírodou východních Krkonoš. Tato kombinace činí jednotku A 3.08 vhodnou jak pro vlastní rekreační využití, tak jako dlouhodobě stabilní investici.
Ke konečné ceně jednotky bude připočtena cena za parkovací stání v podzemní garáži a úložný prostor (ski box).
| VSTUP / CHODBA | 5,95 m2 |
| KOUPELNA | 5,21 m2 |
| OBYTNÁ MÍSTNOST | 30,13 m2 |
| LOŽNICE | 14,21 m2 |
| KOMORA | 3,55 m2 |