
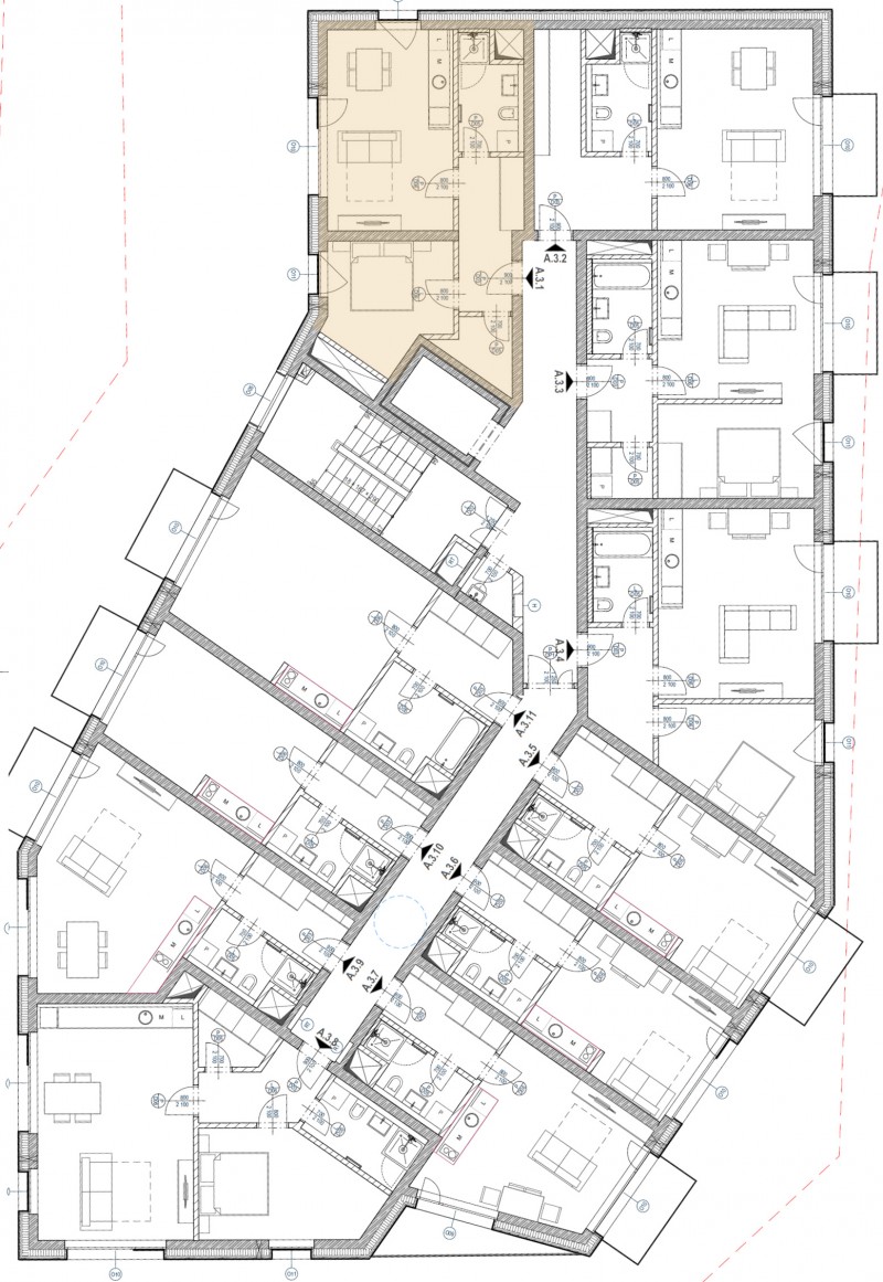
Apartmán A 3.01 je prakticky řešená prostorná
jednotka 2+kk o celkové výměře 51,31 m², umístěná ve
3. nadzemním podlaží (2. patře) budovy
A v rámci projektu Rezidence Pod Portáškami.
Budova A je umístěna zcela vpravo, nejblíže zastávce hromadné dopravy a
konečné lanové dráhy na Portášovy boudy.
Díky západní a severní orientaci oken nabízí apartmán odpolední světlo a přímý vizuální kontakt s vnitřím náměstím a zvedajícím se svahem k Portášovým boudám, což podtrhuje jeho horský charakter i bezprostřední propojení s lyžařským areálem. Poloha jednotky zároveň umožňuje vnímat klid horského centra, aniž by ztrácela pocit soukromí.
Jednotka se nachází v bezprostřední blízkosti výtahu, což zvyšuje komfort každodenního užívání i atraktivitu při krátkodobém pronájmu, zejména pro rodiny, seniory či hosty s lyžařskou výbavou.
Dispoziční řešení 2+kk je navrženo s důrazem na efektivní využití prostoru, dostatek úložných kapacit, včetně komory a pohodlné zázemí jak pro vlastní pobyty, tak pro profesionální provoz ubytovacích služeb. Apartmán bude předán kompletně vybavený nábytkem a interiérovými prvky určenými pro hotelový provoz ve vysokém standardu 4–5.
Rezidence Pod Portáškami vzniká v místě, které má ambici stát se novým přirozeným centrem Velké Úpy, druhým městským centrem Pece pod Sněžkou, s návazností na služby, gastronomii a sportovní infrastrukturu, a zároveň v těsném kontaktu s přírodou východních Krkonoš. Tato kombinace činí jednotku A 3.01 vhodnou jak pro vlastní rekreační využití, tak jako dlouhodobě stabilní investici.
Ke konečné ceně jednotky bude připočtena cena za parkovací stání v podzemní garáži a úložný prostor (ski box).
| VSTUP / CHODBA | 7,65 m2 |
| KOUPELNA | 5,09 m2 |
| OBYTNÁ MÍSTNOST | 20,68 m2 |
| LOŽNICE | 11,44 m2 |
| KOMORA | 3,07 m2 |